Mieszkanie 73,00 m2 3-pokojowe, Bydgoszcz, Fordon

Mieszkanie Bydgoszcz - Fordon 3-pokojowe Sprzedaż

Numer oferty: DMMT-MS-2327
Cena 420 000 zł 5 753 zł/m2
Bydgoszcz, Fordon / blok
Piętro 4p
Pokoje 3
Powierzchnia 73,00 m2
Zabudowa Blok
Rodzaj okien PCV
Balkon Loggia

Mieszkanie Bydgoszcz

Wspaniałe mieszkanie dla rodziny!

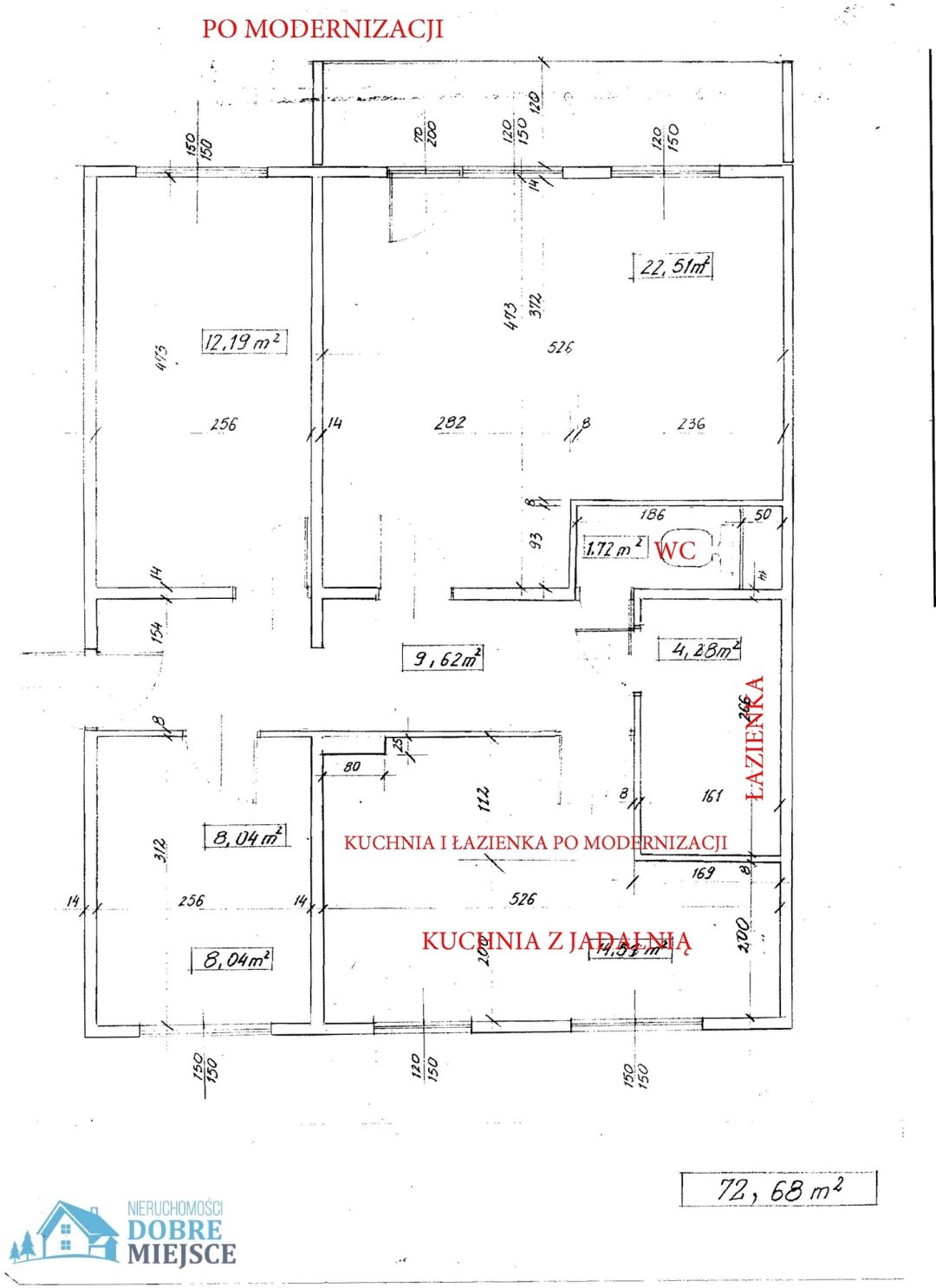
Oferowane mieszkanie to M4, które ma aż 73 m².

Cisza i spokój a jednocześnie blisko do wszelkich punktów handlowych, szkoły, przystanków autobusowych, etc.

Mieszkanie składa się z 3 pokoi , przestronnej kuchni z jadalnią , dużego korytarza i mieści się na czwartym piętrze niskiego bloku na osiedlu Tatrzańskim w Fordonie.

Niewątpliwym jego atutem jest przestronny i jasny salon - aż 22,51m ².

Każdy doceni tu również przestronną kuchnię z jadalną .

Jest to mieszkanie o pełnej własności, z księgą wieczyst ą bez żadnych obciążeń.

Mieszkanie składa się z:
- przestronny, jasny, bardzo ustawny salon z wyjściem na loggię - 22,51 m²,
- sypialnia I - 12,19 m²,

- sypialnia II - 8,04 m ²,
- jasna kuchnia wraz z jadalnią - aż. 14,51 m²,

- łazienka - 4,28 m²,

- toaleta - 1,72m²,
- przedpokój - 9,62 m².

Zalety mieszkania:
- mieszkanie jest bardzo jasne z ładnym widokiem na zieleń;
- cisza i spokój,

- w korytarzu 2 duże, zabudowane szafy oraz pawlacze - drzwi z lustrami dają bardzo przyjemną otoczkę pomieszczenia, pomieścisz tu dużo swoich rzeczy;

- czynsz - ok. 760zł;

- ogrzewanie miejskie;
- domofon dla bezpieczeństwa mieszkańców;
- do mieszkania przynależy duża 8m ² piwnica,

- pod blokiem dużo ogólnodostępnych, bezpłatnych miejsc parkingowych.

Zalety lokalizacji - stąd naprawdę wszędzie jest blisko:
- komunikacja miejska - do przystanków autobusowych 5minut pieszo;
- w okolicy Rynek Biały, Kaufland, Galeria Fordon, Action, Biedronka, Aldi, liczne osiedlowe sklepy, punkty usługowe oraz punkty małej gastronomii;

- 5 minut pieszo szkoła podstawowa z basenem, blisko przedszkola i żłobki;
- w niedalekiej odległości liczne tereny spacerowe - na Fordońskich Górkach znajdziesz mnóstwo terenów zielonych do aktywnego spędzania wolnego czasu lub relaksu;

Korzystając z oferty naszego biura masz pewność, że:
- z chęcią odpowiem rzetelnie i w przystępny sposób na wszystkie Twoje pytania,
- zaprezentuję Ci lokal w czasie dogodnym dla Ciebie,
- pomogę Ci na każdym etapie transakcji,
- dopilnuję wszelkich formalności związanych z zakupem nieruchomości,
- otrzymasz bezpłatnie wsparcie specjalisty w uzyskaniu kredytu bankowego,
- pomogę Ci w zgromadzeniu dokumentów potrzebnych do sfinalizowania transakcji u notariusza oraz z formalnościami posprzedażowymi,
- w kancelarii notarialnej, z którą współpracujemy otrzymasz 30% rabatu na taksę notarialną!

Nie zwlekaj - Zadzwoń do mnie i umów się na prezentację już dzisiaj!

Lidia Wysocka
Pośrednik Nieruchomości
Tel.: 531 905 436




Oferta wysłana z systemu Galactica Virgo

Agent


Wyślij zapytanie


Podobne oferty nieruchomości Bydgoszcz
Mieszkanie Bydgoszcz - Fordon 3-pokojowe 364 000 zł Sprzedaż
Mieszkanie Bydgoszcz - Fordon 3-pokojowe
Bydgoszcz, Fordon / blok
Powierzchnia: 63,60 m2
Pokoje: 3
Piętro: parter
Mieszkanie Bydgoszcz - Fordon 3-pokojowe 420 000 zł Sprzedaż
Mieszkanie Bydgoszcz - Fordon 3-pokojowe
Bydgoszcz, Fordon / blok
Powierzchnia: 73,00 m2
Pokoje: 3
Piętro: 4p
Mieszkanie Bydgoszcz - Błonie 3-pokojowe 333 000 zł Sprzedaż
Mieszkanie Bydgoszcz - Błonie 3-pokojowe
Bydgoszcz, Błonie / blok
Powierzchnia: 46,60 m2
Pokoje: 3
Piętro: 3p
Mieszkanie Bydgoszcz - Wilczak 3-pokojowe 429 000 zł Sprzedaż
Mieszkanie Bydgoszcz - Wilczak 3-pokojowe
Bydgoszcz, Wilczak / budynek wielorodzinny
Powierzchnia: 77,11 m2
Pokoje: 3
Piętro: parter
Szanowni Państwo, w celu świadczenia usług na najwyższym poziomie, w ramach naszego serwisu stosujemy pliki cookies. Korzystanie z witryny bez zmiany ustawień dotyczących cookies oznacza, że będą one zamieszczane w Państwa urządzeniu końcowym. Jeśli nie wyrażają Państwo zgody, uprzejmie prosimy o dokonanie stosownych zmian w ustawieniach przeglądarki internetowej.
zamknij [x]