Mieszkanie 55,09 m2 4-pokojowe, Bydgoszcz, Wilczak

Mieszkanie Bydgoszcz - Wilczak 4-pokojowe Sprzedaż

Numer oferty: DMMT-MS-2391
Cena 380 000 zł 6 898 zł/m2
Bydgoszcz, Wilczak / blok
Piętro 2p
Pokoje 4
Powierzchnia 55,09 m2
Zabudowa Blok
Ogrzewanie C.O. miejskie
Rodzaj okien PCV
Rok budowy 1968
Balkon średni

Mieszkanie Bydgoszcz

StartFragment
Skoro trafiłeś na tę ofertę, to znaczy, że szukasz wśród nieruchomości w Bydgoszczy czegoś więcej niż tylko czterech ścian - szukasz potencjału, doskonałej lokalizacji i bezpieczeństwa , jakie daje pełna własność lokalu mieszkalnego. Mam dla Ciebie propozycję mieszkania typu M-5 , położonego na II piętrze w niskim bloku przy ulicy Chłodn ej na bydgoskim Wilczaku , które jest prawdziwym diamentem do oszlifowania.

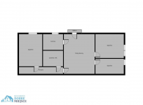
To słoneczne, czteropokojowe mieszkanie o powierzchni 55,09 m² znajduje się na 2. piętrze w zadbanym, ocieplonym bloku z 1968 roku, co gwarantuje Ci ogromne oszczędności na ogrzewaniu w sezonie zimowym. Wnętrze oferuje niespotykany w tym metrażu układ pomieszczeń, zapewniający każdemu domownikowi intymność i własny kąt. Ekspozycja okienna na trzy strony świata sprawia, że mieszkanie żyje rytmem dnia - rano przywita Cię słońce w jednej z sypialni od wschodu, za dnia rozświetli salon od południa, a popołudniami pozwoli cieszyć się ciepłym blaskiem w dwóch pokojach od strony zachodniej.

Nieruchomość składa się z zabudowanego szafami przedpokoju, nowoczesnej łazienki z prysznicem i WC, trzech osobnych sypialni, funkcjonalnie urządzonej kuchni, a także przejściowego salonu.

Największym atutem technicznym tego M-5 jest łazienka, która przeszła generalny remont zaledwie dwa lata temu. Została zaprojektowana w nowoczesnym, bezprogowym standardzie , co zapewnia niebywały komfort i bezpieczeństwo; przy okazji wymieniono w niej całą instalację elektryczną. Prysznic z odpływem liniowym , nowoczesna armatur a oraz udogodnienia dla osób o niepełnej sprawności są dodatkową zaletą tego pomieszczenia.

Pozostała część mieszkania to czysta karta dla Twojej wyobraźni. Choć wnętrza zawierają wykładziny i tapety, to kuchnię wypełniają solidne, zaledwie 5-letnie meble z salonu Agata. Lokal wymaga odświeżenia lub remontu, co daje Ci niepowtarzalną szansę na aranżację dokładnie pod Twój gust. Wymienione okna PCV są w bardzo dobrym stanie, a nadchodzący montaż liczników radiowych na starszego typu, solidnych kaloryferach pozwoli Ci na precyzyjne zarządzanie kosztami eksploatacji przy czynszu wynoszącym około 700 zł.

W bloku znajduje się światłowód firmy Orange, możliwość podłączenia telewizji kablowej czy internetu z firm P4 (dawniej UPC), Orange, Vectra.

Lokalizacja na Wilczaku to absolutny strzał w dziesiątkę dla osób ceniących spokój przy jednoczesnej bliskości centrum Bydgoszczy. Z ulicy Chłodnej masz zaledwie kilka kroków do wszystkiego, co niezbędne do wygodnego życia. Najbliższa Żabka znajduje się niemal za rogiem, a większe zakupy w Biedronce czy Netto zrobisz w ciągu krótkiego, kilkuminutowego spaceru. Rodzice docenią bliskość przedszkoli i szkół podstawowych, do których dzieci dotrą bezpiecznie w parę minut, a pobliska przychodnia zdrowia zapewnia spokój ducha w nagłych sytuacjach. Komunikacja miejska z tego punktu jest rewelacyjna - przystanki autobusowe i tramwajowe łączą Cię z resztą miasta błyskawicznie, pozwalając zapomnieć o staniu w korkach.

Wisienką na torcie, która wyróżnia tę ofertę na tle innych w Bydgoszczy, jest możliwość jednoczesnego zakupu murowanego garażu o powierzchni 18 m² z kanałem, znajdującego się blisko budynku, w cenie 50 tysięcy złotych. W tej części miasta własny garaż z pełną własnością to luksus, który nie tylko ochroni Twój samochód, ale też posłuży jako dodatkowa przestrzeń magazynowa lub miejsce do majsterkowania.

Blokiem zarządza Spółdzielnia Mieszkaniowa "Eltra"; pełny czynsz za 1 osobę wynosi ok. 700zł.

To 4-pokojowe mieszkanie w Bydgoszczy to idealna propozycja dla rodziny lub inwestora, który widzi wartość w doskonałym punkcie na mapie naszego miasta i chce ulokować kapitał w przestronnej nieruchomości z przyszłością.
Jeśli potrzebujesz kredytu hipotecznego na zakup nieruchomości, bezpłatnie pomogę Ci w uzyskaniu najlepszej oferty!
Magdalena Taczyńska
Licencjonowany pośrednik nieruchomości
kom. 608 816 637
Pamiętaj! Pomożemy Ci na każdym etapie transakcji, łącznie z bezpłatną pomocą specjalisty w uzyskaniu kredytu bankowego, zgromadzeniem dokumentacji do notariusza, i sprawami posprzedażowymi.

We współpracującej z naszym biurem kancelarii notarialnej otrzymasz 30% rabatu na taksę notarialną!

Nasze biuro jest członkiem Stowarzyszenia Profesjonalistów w Obrocie Nieruchomościami Pomorza i Kujaw w Bydgoszczy, Polskiej Federacji Rynku Nieruchomości oraz Stowarzyszenia Przedsiębiorców Kujaw i Pomorza w Bydgoszczy.
Sprawy nieruchomości są niezwykle istotne - zaufaj profesjonalistom! EndFragment

Oferta wysłana z systemu Galactica Virgo

Agent

Magdalena Taczyńska

Nr. licencji: 23705

608 816 637

biuro@dobre-miejsce.pl


Wyślij zapytanie


Podobne oferty nieruchomości Bydgoszcz
Mieszkanie Bydgoszcz - Wilczak 4-pokojowe 380 000 zł Sprzedaż
Mieszkanie Bydgoszcz - Wilczak 4-pokojowe
Bydgoszcz, Wilczak / blok
Powierzchnia: 55,09 m2
Pokoje: 4
Piętro: 2p
Mieszkanie Bydgoszcz - Okole 3-pokojowe 350 000 zł Sprzedaż
Mieszkanie Bydgoszcz - Okole 3-pokojowe
Bydgoszcz, Okole / blok
Powierzchnia: 69,00 m2
Pokoje: 3
Piętro: wysoki parter
Mieszkanie Bydgoszcz - Centrum 2-pokojowe 329 000 zł Sprzedaż
Mieszkanie Bydgoszcz - Centrum 2-pokojowe
Bydgoszcz, Centrum / kamienica
Powierzchnia: 41,00 m2
Pokoje: 2
Piętro: parter
Mieszkanie Bydgoszcz - Osiedle Leśne 2-pokojowe 285 000 zł Sprzedaż
Mieszkanie Bydgoszcz - Osiedle Leśne 2-pokojowe
Bydgoszcz, Osiedle Leśne / blok
Powierzchnia: 32,19 m2
Pokoje: 2
Piętro: 1p
Szanowni Państwo, w celu świadczenia usług na najwyższym poziomie, w ramach naszego serwisu stosujemy pliki cookies. Korzystanie z witryny bez zmiany ustawień dotyczących cookies oznacza, że będą one zamieszczane w Państwa urządzeniu końcowym. Jeśli nie wyrażają Państwo zgody, uprzejmie prosimy o dokonanie stosownych zmian w ustawieniach przeglądarki internetowej.
zamknij [x]